

Compris entre les rues Cardinal Lemoine et des Fossés Saint Bernard un vaste garage Mercedes Benz préexistait. Véritable patrimoine historique de la concession automobile, cette parcelle profite d’une situation exceptionnelle, en plein 5° arrondissement de Paris, en vis-à-vis de Jussieu sur une rue et du Paradis latin sur l’autre, on enjambe la Seine à quelques 150m vers l’Ile Saint-Louis.
L’Ere Pompidou du tout voiture avec ses projets d’autoroute joignant le centre de Paris vers fin des années 60, début 70 est désormais bien lointaine, Paris s’orientant déjà en 2013 vers un Paris sans voiture, ce site était tout prédestiné à recevoir des logements, des habitants et de la vie ! Une promesse de vente est conclue entre les propriétaires privés et le groupe Coffim qui organise un concours accompagné par la ville de Paris. Curieusement la morphologie de la parcelle traversante et relativement fine permet au PLU de s’exprimer pleinement en termes de densité, son application permet en théorie d’occuper intégralement le volume allant du RDC au R+7 de part en part, le projet fonctionne en pratique avec une coefficient d’occupation du sol équivalent à 5 ! Le programme avait bien saisi cette opportunité, il prévoyait à l’origine 160 logements pour 14 000m² de SDP.

Concept architectural
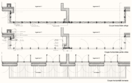
Conçu comme un bâtiment haussmannien pour répondre à ce niveau de densité, le volume capable maximum est percé de deux grandes cours pour répondre aux besoins de ventilation et de prises de vues. La première au sud vient prolonger la continuité de cours des parcelles voisines, de forme en hémicycle, elle permet aux façades de ces cours pourtant en vis-à-vis de se joindre. La deuxième cour, est de forme parfaitement circulaire, elle est suffisamment dimensionnée pour offrir les qualités nécessaires aux vues principales. Ces cours traversent verticalement le bâtiment, sur l’autre axe, horizontalement deux porches généreux traversent de rue à rue irriguant le projet et ses halls d’accès pouvant alors positionnés le long de ces porches de manière à libérer les RDC commerciaux. Le programme en étage est entièrement constitué de logements, pour autant, il est composé de trois parties distinctes, la première forme l’accession, la deuxième au centre correspond à un programme de logements sociaux, et la troisième au programme en dation dédié aux anciens propriétaires. Les logements avec vue sur le Paris historique offre des logements d’une qualité exceptionnelle.

Le traitement des façades a été déterminant dans notre désignation. Nous avons d’abord choisi de réinterpréter de façon contemporaine la façade parisienne faubourienne avec ses alignement verticaux de menuiseries à double vantaux de 120cm, les rampants de toits. Puis il aurait été naturel de travailler le séquençage de la rue, retrouver la séquence parisienne. A contrepied nous nous sommes inspirés du garage préexistant présentait de grands bandeaux vitrés horizontaux, les bowwindows parisiens sont eux aussi réinterprétés en les faisant glisser les uns sur les autres horizontalement là ou ils sont habituellement superposés. L’enduit de façade est remplacé par un béton blanc autoplaçant, les menuiseries bois par de l’aluminium et acier, les volets bois par des valets en aluminium.






























































Projets similaires
préservation contemporaine
le rocher du marché
docteur pierre & de briques

Compris entre les rues Cardinal Lemoine et des Fossés Saint Bernard un vaste garage Mercedes Benz préexistait. Véritable patrimoine historique de la concession automobile, cette parcelle profite d’une situation exceptionnelle, en plein 5° arrondissement de Paris, en vis-à-vis de Jussieu sur une rue et du Paradis latin sur l’autre, on enjambe la Seine à quelques 150m vers l’Ile Saint-Louis.
Architecte Tom darmon Architecture
|
Maîtrise d'ouvrage COFFIM, COGEDIM |
programme 139 LOGEMENTS, COMMERCES ET PARKING
|
Surface 10 458 M² Sdp |
coût 22 M€ HT |
statuT LIVRÉ EN JUILLET 2018 |
bet tce id bati
|
bet structure |
entreprise générale |
bureau de contrôle bureau véritas |
L’Ere Pompidou du tout voiture avec ses projets d’autoroute joignant le centre de Paris vers fin des années 60, début 70 est désormais bien lointaine, Paris s’orientant déjà en 2013 vers un Paris sans voiture, ce site était tout prédestiné à recevoir des logements, des habitants et de la vie ! Une promesse de vente est conclue entre les propriétaires privés et le groupe Coffim qui organise un concours accompagné par la ville de Paris. Curieusement la morphologie de la parcelle traversante et relativement fine permet au PLU de s’exprimer pleinement en termes de densité, son application permet en théorie d’occuper intégralement le volume allant du RDC au R+7 de part en part, le projet fonctionne en pratique avec une coefficient d’occupation du sol équivalent à 5 ! Le programme avait bien saisi cette opportunité, il prévoyait à l’origine 160 logements pour 14 000m² de SDP.



Conçu comme un bâtiment haussmannien pour répondre à ce niveau de densité, le volume capable maximum est percé de deux grandes cours pour répondre aux besoins de ventilation et de prises de vues. La première au sud vient prolonger la continuité de cours des parcelles voisines, de forme en hémicycle, elle permet aux façades de ces cours pourtant en vis-à-vis de se joindre. La deuxième cour, est de forme parfaitement circulaire, elle est suffisamment dimensionnée pour offrir les qualités nécessaires aux vues principales. Ces cours traversent verticalement le bâtiment, sur l’autre axe, horizontalement deux porches généreux traversent de rue à rue irriguant le projet et ses halls d’accès pouvant alors positionnés le long de ces porches de manière à libérer les RDC commerciaux. Le programme en étage est entièrement constitué de logements, pour autant, il est composé de trois parties distinctes, la première forme l’accession, la deuxième au centre correspond à un programme de logements sociaux, et la troisième au programme en dation dédié aux anciens propriétaires. Les logements avec vue sur le Paris historique offre des logements d’une qualité exceptionnelle.

Le traitement des façades a été déterminant dans notre désignation. Nous avons d’abord choisi de réinterpréter de façon contemporaine la façade parisienne faubourienne avec ses alignement verticaux de menuiseries à double vantaux de 120cm, les rampants de toits. Puis il aurait été naturel de travailler le séquençage de la rue, retrouver la séquence parisienne. A contrepied nous nous sommes inspirés du garage préexistant présentait de grands bandeaux vitrés horizontaux, les bowwindows parisiens sont eux aussi réinterprétés en les faisant glisser les uns sur les autres horizontalement là ou ils sont habituellement superposés. L’enduit de façade est remplacé par un béton blanc autoplaçant, les menuiseries bois par de l’aluminium et acier, les volets bois par des valets en aluminium.





























































Projets similaires
préservation contemporaine
le rocher du marché
docteur pierre & de briques