

Un des rares bâtiment érigé à Paris en 1917 alors en pleine Première Guerre Mondiale se situe au 122 de la rue Championnet, 18° arrondissement de Paris. Après une première fonction d’Atelier, il a été ensuite exploité par une société d’audiovisuel en plus d’accueillir quelques logements.
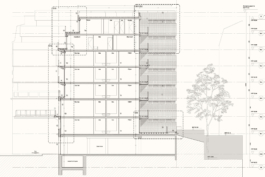
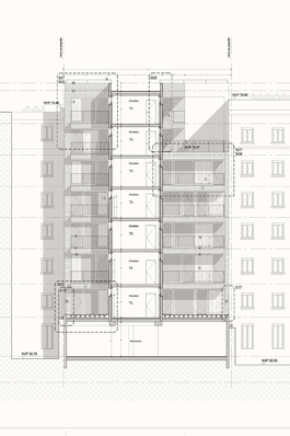
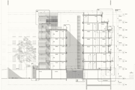
Le programme vise la création de 24 logements alors que le bâtiment existant bien que non classé allait être naturellement surveillé par la Commission du Vieux Paris. A ce titre la façade est conservée et intégrée à la restructuration lourde de l’ouvrage. De par l’exiguïté de la parcelle, particulièrement en son fond, il était a priori impossible de loger l’ensemble du programme sans offrir un mur aveugle aux mitoyens sur cour.

Concept architectural
Notre première attention s’est portée sur la façon d’utiliser judicieusement l’ensemble des contraintes pour qu’elles se muent au service du projet. A chaque courette mitoyenne, nous y adossons une courette, créant ainsi une cour de bonne taille par effet de cour commune. A chaque pignon ou mur aveugle nous venons nous y accrocher, nous rentrons délicatement dans le gabarit des héberges avoisinantes, cherchant à réduire au maximum l’impact de notre intervention. Ces alternances de pleins et de vides sont calibrées en hauteur pour ménager des vues principales uniquement en façades sud et secondaires en façades nord. Ce travail de « tailleur » par retraits successif au plein rend chaque logement pleinement traversant voir même multi-traversants pour certains logements s’enroulant sur plusieurs cours successives. L’élégance de notre réponse se retrouve sur le traitement de l’implantation en fond de parcelle, le PLU permettant des ouvertures en limites par principe de jour de souffrance, nous avons travaillé cette façade en bandeaux, plus qu’une astuce ou un simple traitement, il s’agit là d’une véritable façade qui est donnée à voir aux riverains donnant sur la cour partagée par l’ensemble des copropriétés. Ces bandeaux vitrés gênèrent l’ensemble des façades sur cour, les épaisseurs de bandeaux vitrés se retrouvent sur les épaisseurs de balcons et autres épaisseurs de voiles.

La conservation de la façade existante sur rue semble évidente, remarquable de style emprunté à l’Art Nouveau, les châssis sont remplacés par des menuiseries en acier afin de conserver la finesse des profilés d’antan, les enduits décapés et la brique simplement repeinte d’un blanc éclatant de jouvence. La partie en surélévation, nouvelle, doit disparaitre et rendre hommage à son écrin en réfléchissant tour à tour, le ciel et les façades en vis-à-vis de la rue Championnet, cet effet est rendu possible par un jeu de ventelles orientables, à la fois protectrices et respectueuses. Ce projet est un bel exercice de réinterprétation et d’émulation entre l’histoire et le contemporain à venir, la rencontre de deux temps sans anachronismes, un mariage tout en sobriété.
































Projets similaires
belle venelle à belleville
le rocher du marché
des voitures aux logements

Un des rares bâtiment érigé à Paris en 1917 alors en pleine Première Guerre Mondiale se situe au 122 de la rue Championnet, 18° arrondissement de Paris. Après une première fonction d’Atelier, il a été ensuite exploité par une société d’audiovisuel en plus d’accueillir quelques logements.
Architecte Tom darmon Architecture
|
Maîtrise d'ouvrage bouygues immobilier |
PROGRAMME Réhabilitation, surélévation et extension de 24 logements |
surface 1330 M² SDP
|
COÛT 2,5 M€ HT
|
statut livré en 2017 |
bet tce TEKHNE
| |
Certifications nf logements Plan climat Paris |
Le programme vise la création de 24 logements alors que le bâtiment existant bien que non classé allait être naturellement surveillé par la Commission du Vieux Paris. A ce titre la façade est conservée et intégrée à la restructuration lourde de l’ouvrage. De par l’exiguïté de la parcelle, particulièrement en son fond, il était a priori impossible de loger l’ensemble du programme sans offrir un mur aveugle aux mitoyens sur cour.

Notre première attention s’est portée sur la façon d’utiliser judicieusement l’ensemble des contraintes pour qu’elles se muent au service du projet. A chaque courette mitoyenne, nous y adossons une courette, créant ainsi une cour de bonne taille par effet de cour commune. A chaque pignon ou mur aveugle nous venons nous y accrocher, nous rentrons délicatement dans le gabarit des héberges avoisinantes, cherchant à réduire au maximum l’impact de notre intervention. Ces alternances de pleins et de vides sont calibrées en hauteur pour ménager des vues principales uniquement en façades sud et secondaires en façades nord. Ce travail de « tailleur » par retraits successif au plein rend chaque logement pleinement traversant voir même multi-traversants pour certains logements s’enroulant sur plusieurs cours successives. L’élégance de notre réponse se retrouve sur le traitement de l’implantation en fond de parcelle, le PLU permettant des ouvertures en limites par principe de jour de souffrance, nous avons travaillé cette façade en bandeaux, plus qu’une astuce ou un simple traitement, il s’agit là d’une véritable façade qui est donnée à voir aux riverains donnant sur la cour partagée par l’ensemble des copropriétés. Ces bandeaux vitrés gênèrent l’ensemble des façades sur cour, les épaisseurs de bandeaux vitrés se retrouvent sur les épaisseurs de balcons et autres épaisseurs de voiles.

La conservation de la façade existante sur rue semble évidente, remarquable de style emprunté à l’Art Nouveau, les châssis sont remplacés par des menuiseries en acier afin de conserver la finesse des profilés d’antan, les enduits décapés et la brique simplement repeinte d’un blanc éclatant de jouvence. La partie en surélévation, nouvelle, doit disparaitre et rendre hommage à son écrin en réfléchissant tour à tour, le ciel et les façades en vis-à-vis de la rue Championnet, cet effet est rendu possible par un jeu de ventelles orientables, à la fois protectrices et respectueuses. Ce projet est un bel exercice de réinterprétation et d’émulation entre l’histoire et le contemporain à venir, la rencontre de deux temps sans anachronismes, un mariage tout en sobriété.
































Projets similaires
belleville l'allée prolongée
le rocher du marché
cardinal lemoine des logements d'exception