

Situé sur une parcelle du tissu faubourien du 12ème arrondissement de Paris, le projet prévoit la réhabilitation d'un ancien garage en logements étudiants en cœur d'îlot, puis une construction neuve destinées aux logements familiaux et un local commercial côté rue : deux programmes autonomes pour une gestion facilitée.
Architecte Tom darmon Architecture
|
Maîtrise d'ouvrage regie immobiliere ville de paris |
programme 93 LOGEMENTS etudiants, 12 logements familiaux et 1 local commercial
|
Surface 3950m² sdp |
coût 12.5m € ht |
statuT concours |
BET FLUIDES INEX
|
BET STUCTURE EVP |
PAYSAGISTE d'ICI LA
|
ACOUSTIQUE ALHYANGE |
CERTIFICATIONS RE 2020, Effinergie rénovation, NF Habitat HQE Résidences Services + LOGEMENTS, Bâtiment Biosourcé |

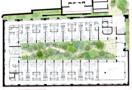
Plan masse
Le changement d’usage de ce bâtiment de 3651 m2, nécessite avant toute chose d’y creuser un patio central pour apporter lumière et verdure à l’intérieur du volume.
Au cœur de ce patio de 205 m2, nous développons un véritable jardin central visible depuis chaque logement. En pleine, il est généreusement planté d’arbres de hautes tiges, de cépées, d’une strate arbustive et herbacée assurant à la fois fraicheur en cœur d’îlot, développement de la biodiversité et espaces propices à la déambulation ou au repos des résidents. Ce gère permet aussi de gérer les eaux pluviales à l’échelle de parcelle.
Les logements sont desservis par des rues intérieures situées le long de la façade conservée. L’une de ces rues est constituée par la rampe existante du parking. Cela participe à la fois à la démarche environnementale en limitant les démolitions à leur strict minimum ; cela participe aussi à la mémoire du lieu ; et la singularité des formes architecturales qui en découlent, participent à l’identité du lieu et à son caractère iconique.


Coupe Est / Ouest sur le patio
Coupe Nord / Sud

Plan paysager sur le patio central

Pour adapter le projet aux contraintes de l’existant (présence de la rampe, façades faussement parallèles) il convient d’adapter le modèle de logements à chaque réalité. De ces contraintes nait une extraordinaire richesse des typologies. Ainsi, pour développer 93 logements étudiants nous développons 8 typologies différentes avec des simplex, des duplex, des mezzanines, des logements individuels, des logements en co-living.
Quel que soit le type de logement, nous portons une attention toute particulière à l’aménagement intérieur pour que chaque typologie dispose d’aménités et de confort particuliers : générosité des espaces, double hauteur et grands rangements.
Ces réflexions menées pour chaque typologie nous permettent de développer des logements étudiants hyper optimisés, qui offrent de grandes qualités d’usages pour des surfaces qui restent compactes.
La qualité des logements passe aussi pour chacun d’eux par la relation à l’extérieur.

Projets similaires
CHERCHEUR DORT
PRESERVATION CONTEMPORAINE
des voitures aux logements

Situé sur une parcelle du tissu faubourien du 12ème arrondissement de Paris, le projet prévoit la réhabilitation d'un ancien garage en logements étudiants en cœur d'îlot, puis une construction neuve destinées aux logements familiaux et un local commercial côté rue : deux programmes autonomes pour une gestion facilitée.
Architecte Tom darmon Architecture
|
Maîtrise d'ouvrage regie immobiliere ville de paris |
programme 93 LOGEMENTS etudiants, 12 logements familiaux et 1 local commercial
|
Surface 3950m² sdp |
coût 12.5m € ht |
statuT concours |
L’ensemble bâti est conçu d’un seul tenant, mais un jeu d’étagements ouvre des perspectives aériennes depuis la place, tandis qu’une grande variété typologique d’espaces extérieurs privatifs dynamise la volumétrie générale et assure la continuité végétale attendue. A la faveur d’une Haute Qualité d’Habitat, la diversité de logements créée offre la possibilité de vivre dans un lieu unique et riche : la générosité et la multiplicité des typologies se répercutent sur le quotidien. Lumière, vues, espaces intérieurs et extérieurs sont mis en exergue afin d’améliorer significativement le cadre de vie.
Simples mais soignées, les lignes et matériaux dépeignent matérialité et noblesse pour asseoir une certaine respectabilité. Pérenne et humaine, l’architecture affiche ses vertus environnementales. L’écriture simple et raisonnée du projet global vient s’animer grâce aux détails ouvragés de l’aluminium anodisé, dont la brillance reflète la lumière et contraste avec la matité de la matière minérale des corps de bâtiments.
Concept urbain
Coupe Nord / Sud
En interaction directe avec l’environnement, il s’érige au regard des valeurs qui régissent l’ensemble du secteur. Ce bâtiment joue un rôle important dans la requalification des espaces existant en réinsérant l’îlot dans la ville où la masse bâtie dialogue avec la volumétrie générale et où les différents rapports d’échelles (ville, quartier, piéton) s’agencent pour fédérer une dynamique. La qualité de son insertion et de son architecture doivent permettre de tisser le lien entre la ville et ses usagers. Ainsi se constitue un ilot homogène, dont la diversité harmonieuse reflète les richesses qui font la complexité et l’intérêt de la vie urbaine.

Projets similaires
CHERCHEUR DORT
PRESERVATION CONTEMPORAINE
des voitures aux logements