

Le projet consiste en la transformation de deux bâtiments historiques en une résidence pour étudiants et chercheurs. Situé entre le boulevard Raspail et la rue Notre-Dame-des-Champs, l’ensemble comprend l’ancien Petit Séminaire, œuvre de Millault et Lassus, et le bâtiment du Comité d’Accueil aux étudiants étrangers, conçu par Aristomenis Provelenghios. Le site présente un fort potentiel patrimonial et paysager, notamment par la richesse de son jardin classé en espace vert protégé. La maîtrise d’ouvrage est assurée par la Régie Immobilière de la Ville de Paris ; la conception est portée par Tom Darmon Architecture en partenariat avec plusieurs experts spécialisés.
Maîtrise d'ouvrage RIVP | |||
programme 55 logements et locaux communs
| |||
Surface 1 700 m² sdp | |||
coût 6 m € ht | |||
statuT PC ACCORDé, PRO DEPOSé, tvx T3-2025
|
Architecte Tom darmon Architecture
|
BET STRucture EVP ingénierie
|
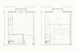
Le projet prévoit la création de 41 logements étudiants et 14 logements pour chercheurs, accompagnés d’espaces communs : local de convivialité, laverie, bureau du gestionnaire, local vélos. La réhabilitation s’attache à préserver l’intégrité architecturale des édifices tout en les adaptant aux normes contemporaines, notamment d’accessibilité PMR. L’intervention privilégie la conservation des éléments existants : menuiseries, façades en pierre ou en béton, escaliers historiques, volumes et dispositions d’origine. La restitution de dispositifs anciens disparus, comme la verrière du vestibule, témoigne d’une démarche patrimoniale attentive et respectueuse.

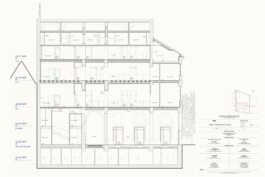
Coupe de principe

Patrimoine
Un soin particulier est porté à la mise en valeur du jardin central, structuré en trois séquences : jardin ethnobotanique, jardin des biotopes et jardin des possibles. Ce cœur d’îlot devient un véritable écrin végétal favorisant la biodiversité et la perméabilité des sols. La palette végétale mêle essences existantes et plantations nouvelles selon une logique écologique et narrative. Des cheminements doux, des assises mobiles et une passerelle suspendue animent cet espace apaisé. Ce dispositif paysager prolonge l’héritage spirituel et culturel du site en lui donnant une dimension d’usage partagée, inclusive et contemporaine.

Enfin, le projet adopte une stratégie environnementale exigeante, répondant aux ambitions du Plan Climat de Paris. Il vise des performances thermiques élevées par le biais d’une isolation par l’intérieur, le remplacement de menuiseries, l’usage de matériaux biosourcés, et le raccordement au réseau CPCU. Un système de récupération de chaleur sur eaux grises complète le dispositif. L’enveloppe du bâtiment est renforcée pour garantir un confort d’hiver et un rafraîchissement naturel estival, favorisé par la ventilation croisée et l’effet tampon des arbres. Le projet allie ainsi patrimoine, innovation et durabilité dans une approche architecturale sensible et équilibrée.

























Projets similaires
les maisons en cascade
docteur pierre et de briques
des voitures aux logements

Le projet consiste en la transformation de deux bâtiments historiques en une résidence pour étudiants et chercheurs. Situé entre le boulevard Raspail et la rue Notre-Dame-des-Champs, l’ensemble comprend l’ancien Petit Séminaire, œuvre de Millault et Lassus, et le bâtiment du Comité d’Accueil aux étudiants étrangers, conçu par Aristomenis Provelenghios. Le site présente un fort potentiel patrimonial et paysager, notamment par la richesse de son jardin classé en espace vert protégé. La maîtrise d’ouvrage est assurée par la Régie Immobilière de la Ville de Paris ; la conception est portée par Tom Darmon Architecture en partenariat avec plusieurs experts spécialisés.
Maîtrise d'ouvrage RIVP | |||
programme 55 logements et locaux communs
| |||
Surface 1 700 m² sdp | |||
coût 6 m € ht | |||
statuT PC ACCORDé, PRO DEPOSé, tvx T3-2025
|
Architecte Tom darmon Architecture
|
BET STRucture EVP ingénierie
|
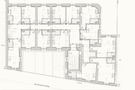
L’ensemble bâti est conçu d’un seul tenant, mais un jeu d’étagements ouvre des perspectives aériennes depuis la place, tandis qu’une grande variété typologique d’espaces extérieurs privatifs dynamise la volumétrie générale et assure la continuité végétale attendue. A la faveur d’une Haute Qualité d’Habitat, la diversité de logements créée offre la possibilité de vivre dans un lieu unique et riche : la générosité et la multiplicité des typologies se répercutent sur le quotidien. Lumière, vues, espaces intérieurs et extérieurs sont mis en exergue afin d’améliorer significativement le cadre de vie.
Simples mais soignées, les lignes et matériaux dépeignent matérialité et noblesse pour asseoir une certaine respectabilité. Pérenne et humaine, l’architecture affiche ses vertus environnementales. L’écriture simple et raisonnée du projet global vient s’animer grâce aux détails ouvragés de l’aluminium anodisé, dont la brillance reflète la lumière et contraste avec la matité de la matière minérale des corps de bâtiments.

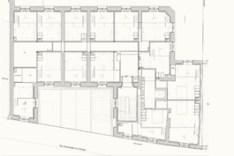
Plan des masses

Concept urbain
Patrimoine
Sur le plan architectural, le projet vise une qualité urbaine et environnementale exemplaire, en respectant les orientations de développement durable fixées par la ville. Les bâtiments seront conçus pour maximiser la luminosité naturelle, la ventilation et l’isolation thermique, conformément aux normes environnementales actuelles. Une attention particulière est également portée à la gestion des espaces extérieurs, avec des aménagements paysagers qui favorisent à la fois la convivialité entre les résidents et l’intégration dans le quartier.
Parmi les cinq bâtiments, deux intègrent au rez-de-chaussée un équipement dédié à la petite enfance, conçu pour répondre aux besoins des familles du quartier. Cet équipement comprend probablement des espaces tels que des crèches ou des structures multi-accueils, permettant d’allier un usage résidentiel à des fonctions sociales et éducatives. Ce volet du projet reflète la volonté de la ville de Nanterre de renforcer les services publics de proximité dans un quartier en développement.

Enfin, le projet adopte une stratégie environnementale exigeante, répondant aux ambitions du Plan Climat de Paris. Il vise des performances thermiques élevées par le biais d’une isolation par l’intérieur, le remplacement de menuiseries, l’usage de matériaux biosourcés, et le raccordement au réseau CPCU. Un système de récupération de chaleur sur eaux grises complète le dispositif. L’enveloppe du bâtiment est renforcée pour garantir un confort d’hiver et un rafraîchissement naturel estival, favorisé par la ventilation croisée et l’effet tampon des arbres. Le projet allie ainsi patrimoine, innovation et durabilité dans une approche architecturale sensible et équilibrée.
























Projets similaires
les maisons en cascade
docteur pierre et de briques
des voitures aux logements