

Dans la ZAC Paris Rive Gauche, le lot A9A2 est implanté au-dessus des voies ferrées d’Austerlitz. VINCI Immobilier propriétaire du foncier, organise en 2012 avec la SEMAPA et les Mairie de Paris et du 13eme arrondissement de Paris une consultation de maîtrise d’œuvre pour réaliser un bâtiment à usage de bureaux.
Architecte Tom darmon Architecture
|
Maîtrise d'ouvrage vinci immobilier |
AMÉNAGEUR semapa |
PROGRAMME bureaux, commerces et rie |
surface 17 742 M² SDP
|
COÛT 37 M€ HT
|
Certifications BBC EFFINERGIE+ PARIS PLAN CLIMAT - HQE BREEAM VERY GOOd |
statut livré en 2017 |
bet structure evp ingénierie
|
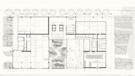
Dès nos premières études, la question de la trame et de l’épaisseur du bâtiment est l’enjeu de ce projet, une épaisseur de bâtiment de 40m est préconisée, la dalle de recouvrement des voies ferrées repose sur une trame de 15m. L’agence fait un choix radical de proposer une trame traditionnelle de bureaux de 18m. Répondant aux enjeux de l’immobilier d’entreprise, et respectant la philosophie fondamentale de la fiche de lot, cette dérogation est le pari gagnant !

Concept architectural
Le programme très contraint a nécessité une recherche perpétuelle de légèreté ; autour d’un « jardin-forêt », le corps principal formé en U se scinde en deux parties, l’une est traité en bois sombre (lamellé collé pré-vieilli) et l’autre est traitée en aluminium blanc (peinture poudrée à effet minéral). Des jeux de volumes en retraits ou surplombs d’espaces protégés ou exposés dégagent terrasses, balcons, de même que des passerelles sont lancées au travers d’une faille sur plusieurs niveaux permettant simultanément de joindre et de libérer chaque compartiment. Toujours à la recherche d’effets optiques, la première peau menuisée est travaillée comme un miroir pour doubler la perception de la profondeur des épines. Depuis l’intérieur des bureaux, ces modénatures donnent un caractère chaleureux et protecteur.

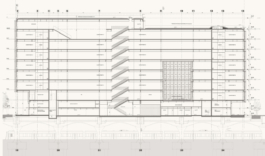
Ce rythme d’espaces et de volumes mêlé aux au jeu de modénatures confèrent à l’ensemble un effet de légèreté, parallèlement il constitue pour les utilisateurs un lieu de travail ponctué des surprises et de points de repères. Un autre rapport entre l’homme et son lieu de travail s’opère, le collaborateur y retrouve le confort naturel de l’échelle humaine, de la dimension humaine. Le projet s’organise autour d’un hall traversant dans lequel se déploie librement un escalier monumental jusqu’au dernier étage. La transparence du hall et de l’escalier, dessiné par l’agence, offre des vues depuis la rue sur le jardin et l’Hôpital Salpêtrière sur toute la hauteur de ce compartiment vertical.





















































Projets similaires
INED, un bâtiment standard tout en souplesse
Le coffre fort de la mémoire
bâtiment voltaire, photophore urbain

Dans la ZAC Paris Rive Gauche, le lot A9A2 est implanté au-dessus des voies ferrées d’Austerlitz. VINCI Immobilier propriétaire du foncier, organise en 2012 avec la SEMAPA et les Mairie de Paris et du 13eme arrondissement de Paris une consultation de maîtrise d’œuvre pour réaliser un bâtiment à usage de bureaux.
Architecte Tom darmon Architecture
|
Maîtrise d'ouvrage vinci immobilier |
AMÉNAGEUR semapa |
PROGRAMME bureaux, commerces et rie |
surface 17 742 M² SDP
|
COÛT 37 M€ HT
|
Certifications BBC EFFINERGIE+ PARIS PLAN CLIMAT - HQE BREEAM VERY GOOd |
statut livré en 2017 |
bet structure evp ingénierie
|
Dès nos premières études, la question de la trame et de l’épaisseur du bâtiment est l’enjeu de ce projet, une épaisseur de bâtiment de 40m est préconisée, la dalle de recouvrement des voies ferrées repose sur une trame de 15m. L’agence fait un choix radical de proposer une trame traditionnelle de bureaux de 18m. Répondant aux enjeux de l’immobilier d’entreprise, et respectant la philosophie fondamentale de la fiche de lot, cette dérogation est le pari gagnant !

Le programme très contraint a nécessité une recherche perpétuelle de légèreté ; autour d’un « jardin-forêt », le corps principal formé en U se scinde en deux parties, l’une est traité en bois sombre (lamellé collé pré-vieilli) et l’autre est traitée en aluminium blanc (peinture poudrée à effet minéral). Des jeux de volumes en retraits ou surplombs d’espaces protégés ou exposés dégagent terrasses, balcons, de même que des passerelles sont lancées au travers d’une faille sur plusieurs niveaux permettant simultanément de joindre et de libérer chaque compartiment. Toujours à la recherche d’effets optiques, la première peau menuisée est travaillée comme un miroir pour doubler la perception de la profondeur des épines. Depuis l’intérieur des bureaux, ces modénatures donnent un caractère chaleureux et protecteur.

Ce rythme d’espaces et de volumes mêlé aux au jeu de modénatures confèrent à l’ensemble un effet de légèreté, parallèlement il constitue pour les utilisateurs un lieu de travail ponctué des surprises et de points de repères. Un autre rapport entre l’homme et son lieu de travail s’opère, le collaborateur y retrouve le confort naturel de l’échelle humaine, de la dimension humaine. Le projet s’organise autour d’un hall traversant dans lequel se déploie librement un escalier monumental jusqu’au dernier étage. La transparence du hall et de l’escalier, dessiné par l’agence, offre des vues depuis la rue sur le jardin et l’Hôpital Salpêtrière sur toute la hauteur de ce compartiment vertical.





















































Projets similaires
INED
UN BÂTIMENT STANDARD HORS DU COMMUN
La fabrique
les nouveaux bureaux de l'emh
bâtiment voltaire
locaux associatifs