

Les archives universitaires et nationales réalisées en 1994 par Dominique Perrault dans la zone industrielle de Bussy-Saint-Georges arrivent à saturation en 2014. L’EPAURIF organise alors une consultation pour la réalisation de leur extension.
La commande précise la construction de 4000 m² d’archivage exploitable dès la livraison, et 4000 m² d’archivage aménageables au terme de la première phase. Le bâtiment recevra des travaux de recherche et de réflexion menée, qui seront conservés ad vitam æternam par l’Etat : le hangar est un coffre-fort de la mémoire. Les espaces d’archivages devront être complétés d’une unique salle de réunion.


Concept architectural
Volumétrie

Programme
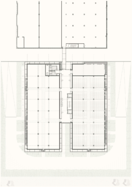
L’extension doit communiquer avec le bâtiment existant. Pour satisfaire cette contrainte, une passerelle est à prévoir en R+1. Le programme envisage un rez-de-chaussée en double hauteur, deux fois supérieur à la hauteur du niveau RDC du bâtiment existant. L’agence réinterroge la commande en proposant un travail de topographie du terrain existant. Le niveau bas de l’extension est creusé sans être enterré, ce qui autorise l’alignement des niveaux supérieurs des bâtiments, et une connexion facilitée par la passerelle. Le projet d’extension propose une organisation scindée en deux bâtiments rectangulaires reliés par une galerie ; l’un aménagé et exploitable à la livraison, l’autre exploitable ultérieurement. Cette organisation favorise la réduction des coûts d’exploitation.

La réponse propose de minimiser les effets du bâtiment dans son environnement, et de conserver un écrin de nature dans un contexte de zone industrielle. En poursuivant la réflexion initiée par Dominique Perrault sur la matière, l’extension se pare d’une tôle d'inox poli qui réinterprète le modèle du hangar industriel dans une version précieuse. Cet habillage est travaillé en plis pour provoquer un effet optique, cette peau réfléchit les ambiances latérales au projet. Le bâtiment se fond dans le paysage et disparait. Cette façade est aussi un clin d’œil au bâtiment de Dominique Perrault qui est en aluminium anodisé aux plis horizontaux. Continuité et dialogue s’opèrent entre les deux bâtiments : le brillant répond au mat ; les similitudes de hauteurs et la symétrie du plan construise une cohérence d’ensemble au coffre-fort de la mémoire.








































Projets similaires
ACADEMIE FRATELLINI, LE DISQUE DUR DE BOIS
bâtiment voltaire, photophore urbain
ined, un bâtiment standard tout en souplesse

Les archives universitaires et nationales réalisées en 1994 par Dominique Perrault dans la zone industrielle de Bussy-Saint-Georges arrivent à saturation en 2014. L’EPAURIF organise alors une consultation pour la réalisation de leur extension.
Architecte Tom darmon Architecture
|
Maîtrise d'ouvrage epaurif |
PROGRAMME EXTENSION DE 2 MAGASINS D’ARCHIVAGE DES FONDS BIBLIOTHÉCAIRES |
surface 9990 M² SDP
|
COÛT 17 M€ HT
|
statut livré en 2017 |
bet structure ALPHA BET
|
La commande précise la construction de 4000 m² d’archivage exploitable dès la livraison, et 4000 m² d’archivage aménageables au terme de la première phase. Le bâtiment recevra des travaux de recherche et de réflexion menée, qui seront conservés ad vitam æternam par l’Etat : le hangar est un coffre-fort de la mémoire. Les espaces d’archivages devront être complétés d’une unique salle de réunion.


Concept architectural

Programme
L’extension doit communiquer avec le bâtiment existant. Pour satisfaire cette contrainte, une passerelle est à prévoir en R+1. Le programme envisage un rez-de-chaussée en double hauteur, deux fois supérieur à la hauteur du niveau RDC du bâtiment existant. L’agence réinterroge la commande en proposant un travail de topographie du terrain existant. Le niveau bas de l’extension est creusé sans être enterré, ce qui autorise l’alignement des niveaux supérieurs des bâtiments, et une connexion facilitée par la passerelle. Le projet d’extension propose une organisation scindée en deux bâtiments rectangulaires reliés par une galerie ; l’un aménagé et exploitable à la livraison, l’autre exploitable ultérieurement. Cette organisation favorise la réduction des coûts d’exploitation.

La réponse propose de minimiser les effets du bâtiment dans son environnement, et de conserver un écrin de nature dans un contexte de zone industrielle. En poursuivant la réflexion initiée par Dominique Perrault sur la matière, l’extension se pare d’une tôle d'inox poli qui réinterprète le modèle du hangar industriel dans une version précieuse. Cet habillage est travaillé en plis pour provoquer un effet optique, cette peau réfléchit les ambiances latérales au projet. Le bâtiment se fond dans le paysage et disparait. Cette façade est aussi un clin d’œil au bâtiment de Dominique Perrault qui est en aluminium anodisé aux plis horizontaux. Continuité et dialogue s’opèrent entre les deux bâtiments : le brillant répond au mat ; les similitudes de hauteurs et la symétrie du plan construise une cohérence d’ensemble au coffre-fort de la mémoire.








































Projets similaires
ACADEMIE FRATELLINI, LE DISQUE DUR DE BOIS
bâtiment voltaire, photophore urbain
ined, un bâtiment standard tout en souplesse