

L’Etablissement Public Territorial de Plaine Commune a mis au point au fil du temps un réseau finement maillé de diffusion et d’accès à la Culture. Pourvue de 23 médiathèques et 3 bibliobus, le réseau de Plaine Commune permet la consultation d’un fond documentaire considérable.
Architecte Tom darmon Architecture
|
Maîtrise d'ouvrage communauté d'agglomération plaine commune |
PROGRAMME bureaux, stockage, salles de réunion |
surface 1562 M² SHOn
|
COÛT 2,6 M€ HT
|
statut livré en 2012 |
bet d'études tce mtc
|
L’éloignement géographique de ces équipements fixes et mobiles nécessitait un outil dédié permettant la distribution, l’approvisionnement ainsi qu’une gestion optimisée du fond documentaire. C’est là la destination des Services Mutualisés des Médiathèques de Plaine Commune. Le site est choisi, l’écrin qui accueille cet équipement est partagé avec l’Académie Fratellini, première école de Cirque en France. Sa préexistence donne à l’ensemble une ambiance circassienne chaleureuse, humaine… le bois y règne, fruit du travail remarquable de l’architecte Patrick Bouchain par ailleurs mentionné à l’Equerre d’Argent pour ce projet en 2003.

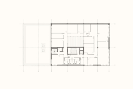
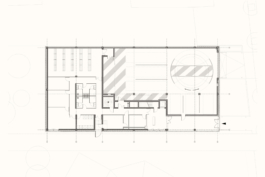
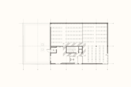
Le serveur des médiathèques projeté, véritable mémoire vive du réseau, fonctionne à la manière d’un disque dur : entrées de données, stockage, distribution et ventilation des datas. Voués à la gestion des flux et des archives, les bureaux administratifs des médiathèques sont organisés autour d’un patio au deuxième et dernier étage, à l’abri des vues, ceux-ci profitent de conditions de travail plus que confortables en prise directe avec le jardin-patio. Cette position haute permet un accès facilité aux magasins d’archivage au niveau inférieur, le premier étage intégralement organisé pour le stockage d’ouvrages profite d’un environnement uniformisé, la lumière et l’hygrométrie sont sous contrôle. Le programme n’étant pas destiné à recevoir du public, au RDC sont positionnés les locaux techniques, l’accueil du personnel, et le garage pour accueillir les bibliobus. Nous avons été attributaires du marché car notre proposition comprenait une plaque de retournement pour bibliobus, positionnée à l’intérieur du bâtiment, sur notre emprise, cette simple disposition a permis de réduire drastiquement les coûts d’exploitation, seul le conducteur suffit à manœuvrer les véhicules, alors que deux étaient nécessaires tel que stipulé au programme.

Avec la présence forte du matériau bois de l’Académie Fratellini, nous avons naturellement souhaité faire lien en employant le même matériau. Le bois est un matériau fragile est mutable. L’objet de notre programme est lié à une certaine notion d’introversion et de distribution de données, de disque dur. La façade du bâtiment est conçue comme un monolithe de bois ajouré à claire voie, un radiateur de bois, et puisque le bois mue avec le temps, il est intégralement exposé pour qu’il évolue de façon homogène et maitrisée, il vieillit en parallèle du bois présent sur l’Académie, les deux programmes sont liés. Le peuplier initialement de teinte jaune désaturée est aujourd’hui de teinte grise, c’est intéressant de vérifier que la mutabilité d’une façade au cours de sa vie correspond bien à ce qui avait été anticipé !











































Projets similaires
Le coffre fort de la mémoire
bâtiment Voltaire, photophore urbain
la fabrique

L’Etablissement Public Territorial de Plaine Commune a mis au point au fil du temps un réseau finement maillé de diffusion et d’accès à la Culture. Pourvue de 23 médiathèques et 3 bibliobus, le réseau de Plaine Commune permet la consultation d’un fond documentaire considérable.
Architecte Tom darmon Architecture
|
Maîtrise d'ouvrage communauté d'agglomération plaine commune |
PROGRAMME bureaux, stockage, salles de réunion |
surface 1562 M² SHOn
|
COÛT 2,6 M€ HT
|
statut livré en 2012 |
bet d'études tce mtc
|
L’éloignement géographique de ces équipements fixes et mobiles nécessitait un outil dédié permettant la distribution, l’approvisionnement ainsi qu’une gestion optimisée du fond documentaire. C’est là la destination des Services Mutualisés des Médiathèques de Plaine Commune. Le site est choisi, l’écrin qui accueille cet équipement est partagé avec l’Académie Fratellini, première école de Cirque en France. Sa préexistence donne à l’ensemble une ambiance circassienne chaleureuse, humaine… le bois y règne, fruit du travail remarquable de l’architecte Patrick Bouchain par ailleurs mentionné à l’Equerre d’Argent pour ce projet en 2003.

Le serveur des médiathèques projeté, véritable mémoire vive du réseau, fonctionne à la manière d’un disque dur : entrées de données, stockage, distribution et ventilation des datas. Voués à la gestion des flux et des archives, les bureaux administratifs des médiathèques sont organisés autour d’un patio au deuxième et dernier étage, à l’abri des vues, ceux-ci profitent de conditions de travail plus que confortables en prise directe avec le jardin-patio. Cette position haute permet un accès facilité aux magasins d’archivage au niveau inférieur, le premier étage intégralement organisé pour le stockage d’ouvrages profite d’un environnement uniformisé, la lumière et l’hygrométrie sont sous contrôle. Le programme n’étant pas destiné à recevoir du public, au RDC sont positionnés les locaux techniques, l’accueil du personnel, et le garage pour accueillir les bibliobus. Nous avons été attributaires du marché car notre proposition comprenait une plaque de retournement pour bibliobus, positionnée à l’intérieur du bâtiment, sur notre emprise, cette simple disposition a permis de réduire drastiquement les coûts d’exploitation, seul le conducteur suffit à manœuvrer les véhicules, alors que deux étaient nécessaires tel que stipulé au programme.

Avec la présence forte du matériau bois de l’Académie Fratellini, nous avons naturellement souhaité faire lien en employant le même matériau. Le bois est un matériau fragile est mutable. L’objet de notre programme est lié à une certaine notion d’introversion et de distribution de données, de disque dur. La façade du bâtiment est conçue comme un monolithe de bois ajouré à claire voie, un radiateur de bois, et puisque le bois mue avec le temps, il est intégralement exposé pour qu’il évolue de façon homogène et maitrisée, il vieillit en parallèle du bois présent sur l’Académie, les deux programmes sont liés. Le peuplier initialement de teinte jaune désaturée est aujourd’hui de teinte grise, c’est intéressant de vérifier que la mutabilité d’une façade au cours de sa vie correspond bien à ce qui avait été anticipé !











































Projets similaires
ctles coffre fort de la mémoire
bâtiment Voltaire locaux associatifs
la fabrique