

Ce bâtiment-îlot est issu du projet de rénovation du quartier Franciades–Opéra conçu par l’agence TVK. En lieu et place d’un parking aérien de 80/80 m d’emprise, le projet urbain propose la réinterprétation du modèle classique de la rue commerçante.
Plutôt que d’implanter les bâtiments en périphérie de l’ilot, des voies nouvelles piétonnes et minérales le traversent et reconnectent logiquement les voies existantes, cette conception génère un archipel de bâtiments, une grande fluidité au sol est favorisée de même que le développement d’un grand linéaire de façades commerciales est assuré.

Plan masse

Coupe axonométrique
Notre bâtiment amorce et annonce le renouvellement du quartier face à l’Opéra de Massy. Assurer l’interface entre le quartier renouvelé et les opérations existantes est le point de départ de nos intentions. Notre proposition explore la notion de « bâtiment-paysage ». La morphologie est un travail sculptural d’épannelage vertical et horizontal des hauteurs et des niveaux depuis le sol jusqu’au ciel. En prolongement de l’espace public, il se déploie par strates, structure et dialogue avec l’esplanade ; il devient un immeuble remarquable du quartier. La grande perméabilité de l’espace public est favorisée par un rez-de-chaussée entièrement commercial qui permet des porosités entre le cœur de ville, le cœur de quartier, bâtiments et parcs environnants.

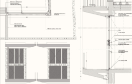
Tous les logements profitent d’espaces extérieurs généreux, les loggias sont appuyées sur de profonds bandeaux horizontaux en béton blanc préfabriqués, et sont protégés par des refends de mêmes matières. Ces parties préfabriquées sont d’épaisseur variable avec ou sans fruits permettant une lecture plus sensible de l’ensemble. Le corps principal du bâtiment en fond de loggias est traité en bois massif trois plis ce qui confère un cadre chaleureux, agréable et domestiques au dehors du logement. Les séjours en double hauteur sont disposés aux angles du bâtiment ce qui permet d’observer le panorama à 180°. Il en résulte une architecture sobre et élégante et des espaces extérieurs enviables et appropriables. Chaque appartement-maison, tous en duplex offrant des vides sur double hauteur, s’organise à l’intérieur de grandes loges suspendues.



























Projets similaires
chercheur dort
le rocher du marché
l'oiseau des îles, icône malgré lui

Ce bâtiment-îlot est issu du projet de rénovation du quartier Franciades–Opéra conçu par l’agence TVK. En lieu et place d’un parking aérien de 80/80 m d’emprise, le projet urbain propose la réinterprétation du modèle classique de la rue commerçante.
Architecte Tom darmon Architecture
|
Maîtrise d'ouvrage NEXITY APOlLONIA - SODES |
urbaniste tvk |
PROGRAMME 105 LOGEMENTS ET COMMERCES (2 lots) |
surface 10 079 M² SDP
|
COÛT 10.5 M€ HT
|
statut livré en 2017 |
bet tce nexity
|
Plutôt que d’implanter les bâtiments en périphérie de l’ilot, des voies nouvelles piétonnes et minérales le traversent et reconnectent logiquement les voies existantes, cette conception génère un archipel de bâtiments, une grande fluidité au sol est favorisée de même que le développement d’un grand linéaire de façades commerciales est assuré.

Plan masse

Coupe axonométrique
Notre bâtiment amorce et annonce le renouvellement du quartier face à l’Opéra de Massy. Assurer l’interface entre le quartier renouvelé et les opérations existantes est le point de départ de nos intentions. Notre proposition explore la notion de « bâtiment-paysage ». La morphologie est un travail sculptural d’épannelage vertical et horizontal des hauteurs et des niveaux depuis le sol jusqu’au ciel. En prolongement de l’espace public, il se déploie par strates, structure et dialogue avec l’esplanade ; il devient un immeuble remarquable du quartier. La grande perméabilité de l’espace public est favorisée par un rez-de-chaussée entièrement commercial qui permet des porosités entre le cœur de ville, le cœur de quartier, bâtiments et parcs environnants.

Tous les logements profitent d’espaces extérieurs généreux, les loggias sont appuyées sur de profonds bandeaux horizontaux en béton blanc préfabriqués, et sont protégés par des refends de mêmes matières. Ces parties préfabriquées sont d’épaisseur variable avec ou sans fruits permettant une lecture plus sensible de l’ensemble. Le corps principal du bâtiment en fond de loggias est traité en bois massif trois plis ce qui confère un cadre chaleureux, agréable et domestiques au dehors du logement. Les séjours en double hauteur sont disposés aux angles du bâtiment ce qui permet d’observer le panorama à 180°. Il en résulte une architecture sobre et élégante et des espaces extérieurs enviables et appropriables. Chaque appartement-maison, tous en duplex offrant des vides sur double hauteur, s’organise à l’intérieur de grandes loges suspendues.



























Projets similaires
chercheur dort
le rocher du marché
l'oiseau des îles, icône malgré lui